image

The Executive

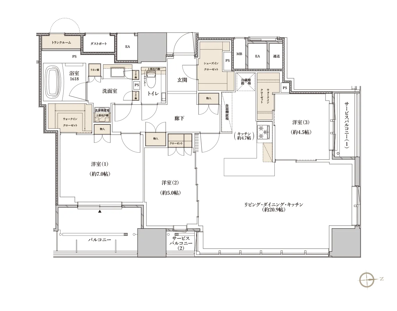
エグゼクティブプラン

[26~29F]

E-91Otype
3LDK+2WIC+SIC+TR

WIC=ウォークインクローゼット SIC=シューズインクローゼット TR=トランクルーム

■ 専有面積/91.92㎡(約27.80坪)

■ バルコニー面積/7.20㎡(約2.17坪)

■ サービスバルコニー面積(1)/2.77㎡(約0.83坪)

■ サービスバルコニー面積(2)/2.32㎡(約0.70坪)

  • ※掲載の間取図・面積等は設計段階の設計図を元に描いたもので、今後変更になる場合がございます。予めご了承ください。
  • ※掲載のImageはイメージ写真となります。
ENTRY 来場予約 限定ページ