image

The Superior

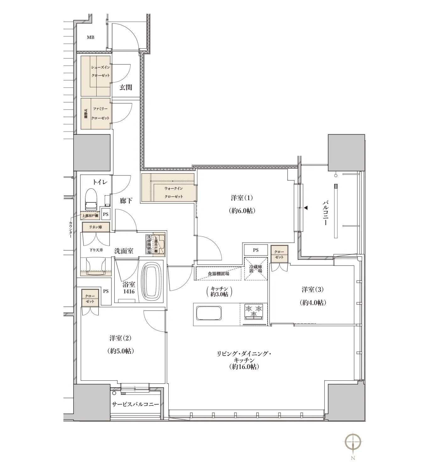
スーペリアプラン

[21~25F]

S-76Itype
3LDK+WIC+SIC+FC

WIC=ウォークインクローゼット SIC=シューズインクローゼット FC=ファミリークローゼット

■ 専有面積/76.10㎡(約23.02坪)

■ バルコニー面積/6.10㎡(約1.84坪)

■ サービスバルコニー面積/2.56㎡(約0.77坪)

  • ※掲載の間取図・面積等は設計段階の設計図を元に描いたもので、今後変更になる場合がございます。予めご了承ください。
  • ※掲載のImageはイメージ写真となります。
ENTRY 来場予約 限定ページ