TYPE
A TYPE : 3LDK
Ag TYPE : 3LDK
B TYPE : 2LDK
C TYPE : 3LDK
PLAN
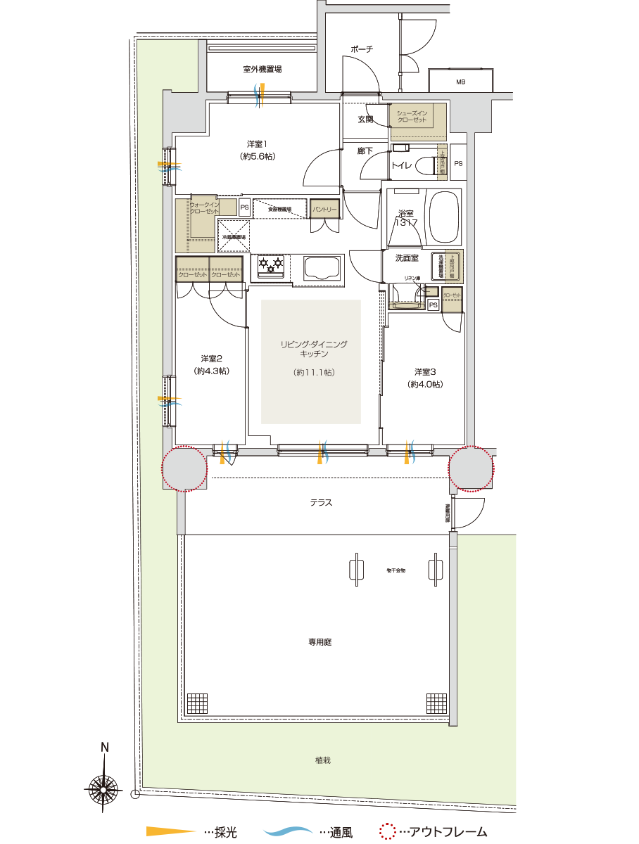
間取り
※WIC:ウォークインクローゼット、SIC:シューズインクローク
※掲載の情報は2024年10月現在のものです。
プレシスのその他のラインナップはこちら
Scroll