image

The Comfort

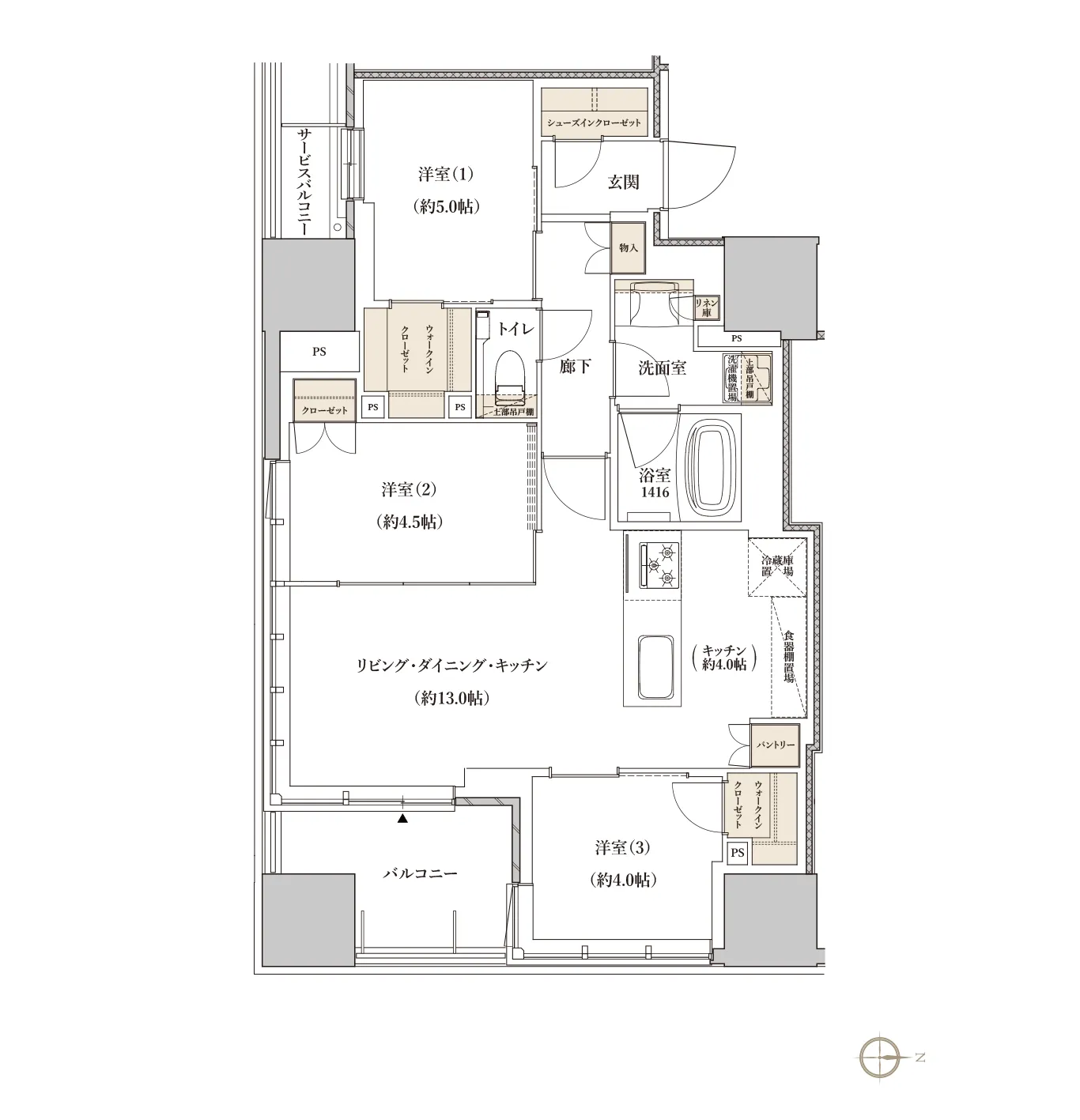
コンフォートプラン

[4~14F]

C-65Ctype
3LDK+2WIC+SIC

WIC=ウォークインクローゼット SIC=シューズインクローゼット

■ 専有面積/65.78㎡(約19.89坪)

■ バルコニー面積/6.30㎡(約1.90坪)

■ サービスバルコニー面積/1.55㎡(約0.46坪)

  • ※掲載の間取図・面積等は設計段階の設計図を元に描いたもので、今後変更になる場合がございます。予めご了承ください。
  • ※掲載のImageはイメージ写真となります。
ENTRY 来場予約 限定ページ