image

The Executive

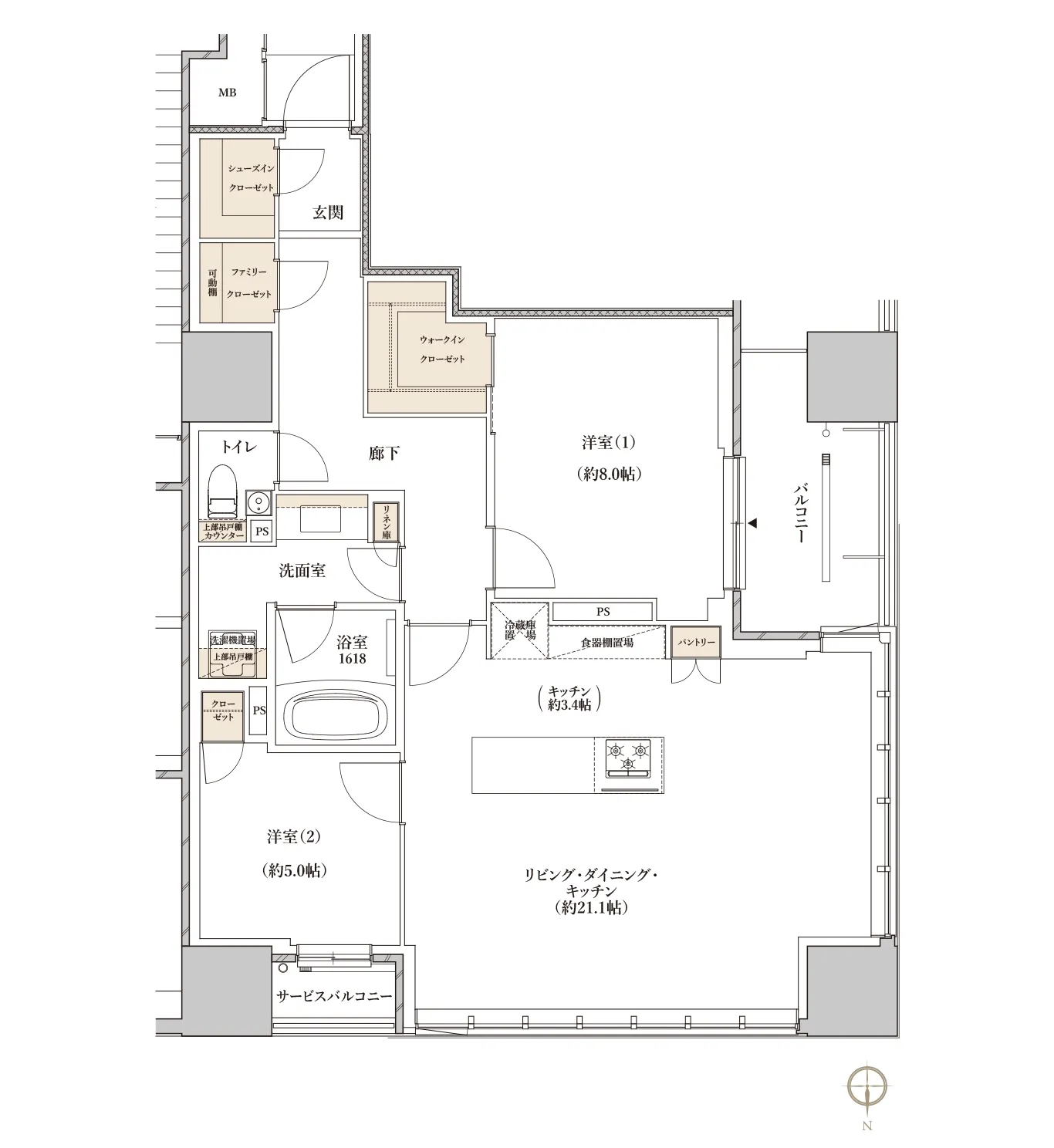
エグゼクティブプラン

[26~29F]

E-84Ltype
2LDK+WIC+SIC+FC

WIC=ウォークインクローゼット SIC=シューズインクローゼット FC=ファミリークローゼット

■ 専有面積/84.18㎡(約25.46坪)

■ バルコニー面積/7.60㎡(約2.29坪)

■ サービスバルコニー面積/2.56㎡(約0.77坪)

  • ※掲載の間取図・面積等は設計段階の設計図を元に描いたもので、今後変更になる場合がございます。予めご了承ください。
  • ※掲載のImageはイメージ写真となります。
ENTRY 来場予約 限定ページ