ENTRY
来場予約
限定ページ
TOP
DESIGN
LOCATION
ACCESS
PLAN
MODEL ROOM
QUALITY
MAP
OUTLINE
ENTRY
来場予約
限定ページ
image
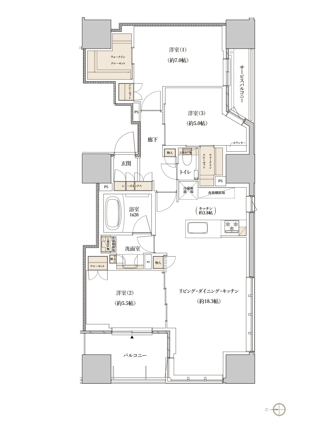
The Superior
スーペリアプラン
[15~25F]
S-83F
type
3LDK
+2WIC
WIC=ウォークインクローゼット
■ 専有面積/
83.84
㎡(約25.36坪)
■ バルコニー面積/7.00㎡(約2.11坪)
■ サービスバルコニー面積/3.88㎡(約1.17坪)
間取り一覧に戻る
※掲載の間取図・面積等は設計段階の設計図を元に描いたもので、今後変更になる場合がございます。予めご了承ください。
※掲載のImageはイメージ写真となります。
ENTRY
来場予約
限定ページ